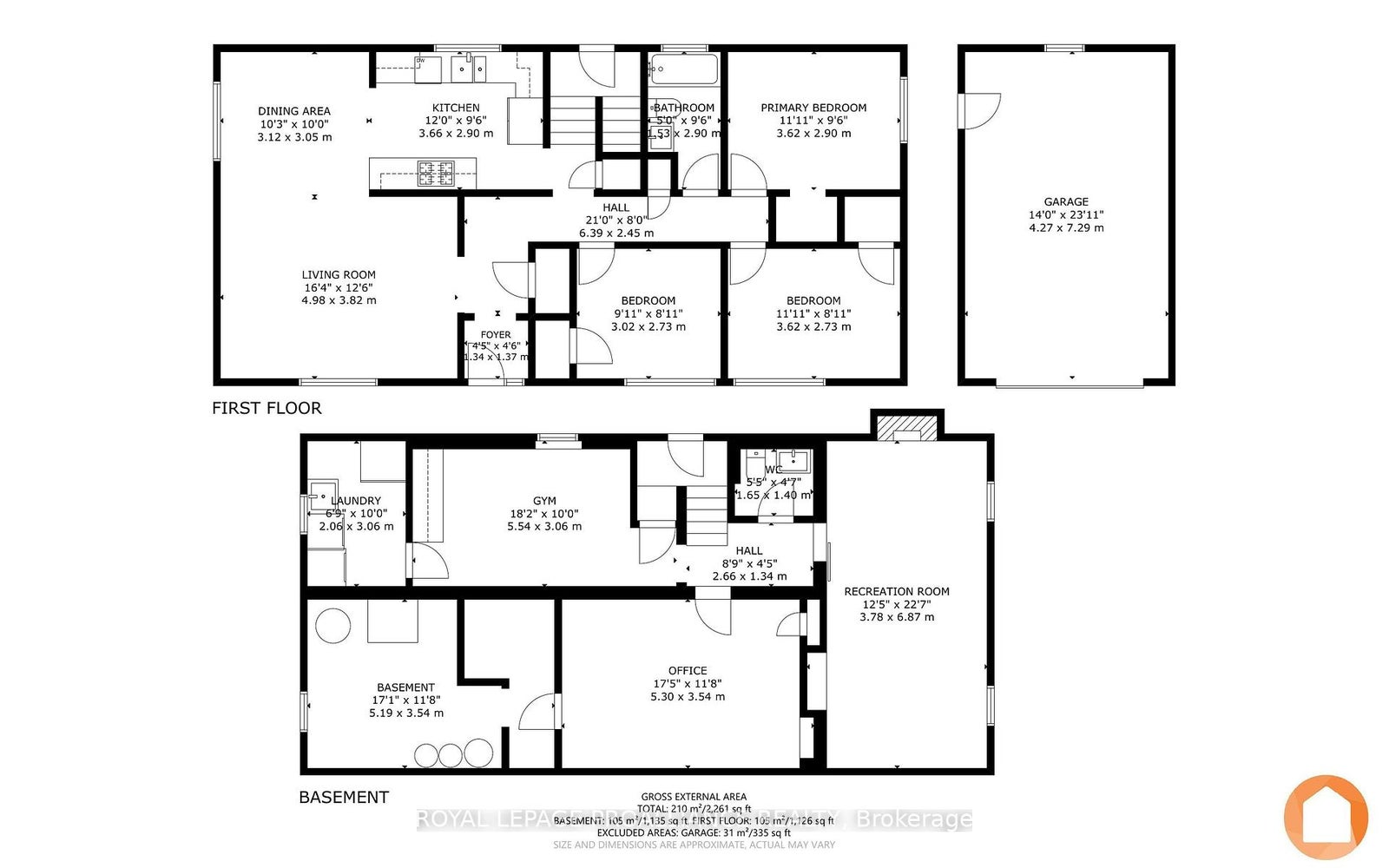
Enjoy the many perks of rural living within minutes to town amenities. Introducing 206 Elmwood Drive. Impressive curb appeal @ this all brick beauty with metal roof & massive freshly sealed drive. The established perennial garden lined path to the spacious front deck invites you into the entry with convenient coat closet storage to the original hardwood flooring throughout. Bright bay window in the living & fireplace with trending surround feature is open to the dining space, large enough to accommodate a harvest table. Stunning custom kitchen with neutral cabinetry to ceiling, under valance lighting & durable dekton countertops. Bonus, the stainless steel appliances are included. Coordinating lighting from the dining combined with pot lights & functional pantry closet. Three bedrooms on this main level nicely accommodates growing family living + a full bath with updated vanity. Additional living space in the fully finished basement providing a comfortable rec room with newer carpet & included built in TV media centre for your entertaining enjoyment. Laminate flooring through the remaining space offering two great flex rooms, you decide the use. One currently functioning as an office & the other with the window as a gym with cabinetry storage & bar fridge. Laundry, 2 piece bath & large utility room with workshop option here as well. Step out the back door to your interlocking patio with gas BBQ connection, raised vegetable gardens, in-ground dog fencing & new septic bed open to natural nature beyond. The 323 sq ft garage provides even more functional storage at this country charmer, surrounded by mature red maple, pines, cedars & lilac trees. You're invited to view this wonderfully updated home on desirable Elmwood Drive.
Address
206 Elmwood Drive
MLS® Status
New
Expiration Date
2025-11-30
Property Type
Residential Freehold
Type of Dwelling
Detached
Style of Home
Bungalow
Transaction Type
Sale
Area
Belleville
Sub-Area
Thurlow Ward
Region
Hastings
Bedrooms
3
Bedrooms (Total)
3
Rooms Above Grade
6
Rooms Below Grade
5
Bathrooms
2
Floor Area
1100-1500 Sq. Ft.
Lot Size Source
Survey
Lot Depth
200
Lot Shape
Rectangular
Lot Size Range (Acres)
< .50
Lot Size Units
Feet
Lot Width
100
Parcel Number
405430031
Occupant Type
Owner
Cross Street
Between Airport Pkwy & Hwy 2
Approx. Age
51 - 99 Years
MLS® Number
X12394656
Listing Brokerage
ROYAL LEPAGE PROALLIANCE REALTY
Basement Area
Finished, Full
Postal Code
K8N 4Z4
Posession Details
Please Inquire
Parking
Private Double
Parking Places (Total)
9
Parking Spaces
8
Tax Amount
$2,515.82
Tax Year
2025
Site Influences
Clear View, Deck, Landscaped, Patio, Privacy
Exterior Features
Deck, Landscaped, Patio, Privacy
Interior Features
Bar Fridge, Carpet Free, Sump Pump, Water Treatment
Property Features
Clear View
Central Vacuum
No
Family Room
No
Ensuite Laundry
No
Special Designation
Unknown
Standard Status
Active
Board Or Association
Central Lakes Association of REALTORS
Heat Source
Gas
Heat Type
Forced Air
Cooling Features
Central Air
Construction Materials
Brick
Direction Faces
East
Fireplace
Yes
Fireplace Features
Electric, Living Room
Foundation Details
Block
Garage
Yes
Garage Type
Attached
Covered Spaces
1
Kitchens Total
1
Kitchens Above Grade
1
Pool Features
None
Roof
Metal
Tax Legal Description
PT LT 18 CON 1 THURLOW PT 1, 21R10185; BELLEVILLE ; COUNTY OF HASTINGS
Water Source
Drilled Well
View Type
Garden, Clear, Trees/Woods
Waterfront
No
Sewer
Septic
